UA
другой город
Войти
дизайн-студия интерьера
Базовый дизайн-проект
600 грн/м2: обмерный чертеж, планировка квартиры, 3d визуализация, план потолка, план пола, план электроточек
600 грн/м2: обмерный чертеж, планировка квартиры, 3d визуализация, план потолка, план пола, план электроточек
Описание
Если для Вас главное - определиться с типом покрытий, получить 3д визуализацию, чтобы на картинках увидеть стиль интерьера и цветовые сочетания, а также набор основных чертежей для строителей; если Вы готовы самостоятельно осуществлять подбор всех финишных покрытий, мебели и светильников, ориентируясь на дизайн-проект, то этот вариант для Вас.

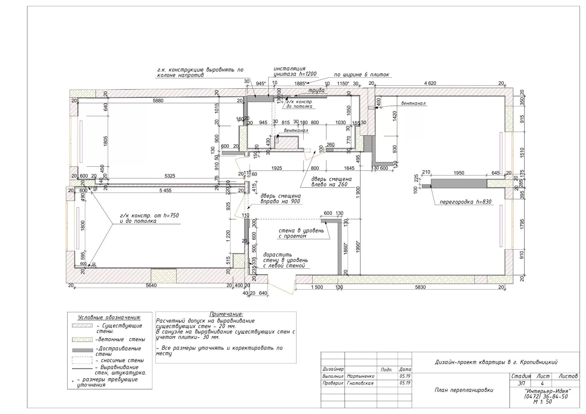
Перечень услуг, который входит в пакет "Базовый дизайн-проект" в г. Львов и Львовская область :
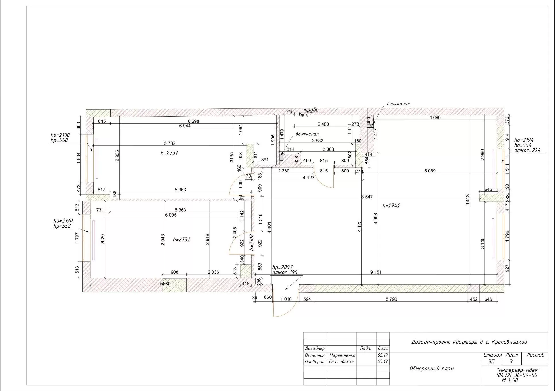
  • обмерный чертеж
  • план квартиры с расстановкой мебели и оборудования
  • ориентировочная 3Д визуализация
  • план потолка
  • план пола
  • план размещения электроточек
Этот вариант комплектации наиболее распространен на рынке дизайнерских услуг.

Его составляющие это:
- так называемый технический дизайн - перепланировка и основные строительные чертежи, которые позволяют оптимальнее использовать площадь, сделать необходимые комнаты более просторными, большими;
- 3д визуализация, которая позволяет увидеть предложенные решения в цвете, материале, объёме.

 Ориентировочная цена проекта в базовой комплектации - 600 грн/м2.
Цена на дизайн интерьера актуальна для г. Львов. Цены для других регионов смотрите на странице филиалы дизайн-студии
Просчитать стоимость разработки дизайн-проекта можно на странице предварительного просчёта цен.

При строительстве современных ЖК достаточно часто размер или количество тех или иных комнат могут не совпадать с Вашими потребностями.
Хорошая планировка, выполненная нашими дизайнерами, конечно, не сделает высоким потолок в Вашей квартире, но с большой вероятностью сможет оптимизировать функциональные зоны, добиться максимума удобства именно для Вас, под Ваши индивидуальные предпочтения.

Отзывы
Спасибо вам большое за проделанную работу!!!
Нам было легко и комфортно с вами работать ???? Кто будет спрашивать, мы рады будем вас советовать.
Желаем вам вдохновения для вашей работы, сил и хороших, добрых клиентов. Процветайте и развивайтесь!!!
Спасибо большое за креативный и профессиональный подход к разработке интерьера магазина женской одежды в ТРЦ "PIONEER".
Внимательный и отзывчивый персонал, своевременность и точность поставленных задач (подбор материалов, оборудования, элементов интерьера).
Нам дизайн квартиры сделали недели за три. Все в основном было в режиме Вайбер, это не помешало в работе и исполнении нашего заказа. Оплатить можно частями, как бы это не плохо. Сразу поняли, что за стиль хотим, придерживались тех цветовых гамм, что мы хотели. Все указано, где, что можно купить, заказать.
Сопутствующие услуги