UA
другой город
Войти
дизайн-студия интерьера

Магазин "Пеппи" в ТРЦ "PIONEЕR"

Цена
0 грн.
-0%
0 грн.
Экономия 0 грн.
Магазин детских носочков – «Шалости приветствуются»
Характеристики

Категория
Дата
Декабрь 2020
Мансарда
Без мансарды
Площадь
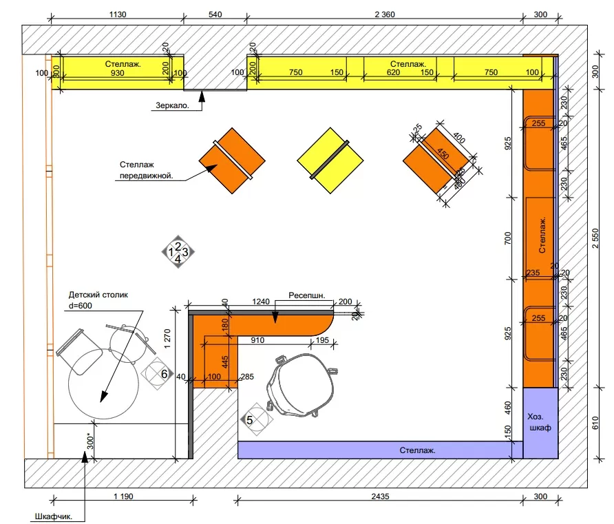
14,55 м.кв
Описание
Основная задача:
Оформление магазина и разработка мебели для него в сочетании с сюжетной линией, продиктованной названием.

Отталкиваясь от названия и общей идеи, мы постарались передать в интерьере игривость, причудливость и непосредственность персонажа, в честь которого назван магазин.
Яркие цвета, разные геометрические формы в оформлении стен и стеллажей.
Магазин обращает на себя внимание.
И при этом товар с элементами декора смотрится очень органично.
Ресепшн оформили в форме большого чулка, который поднимается к потолку.
За ним вывеска и стеллаж.
В открытых ячейках можно по цветам и размерам раскладывать носочки или колготки.
Это тоже некий декоративный элемент.

Основные материалы:
Стены - покраска. Орнамент на них - покраска через трафарет. Мебель - ДСП.
Отзыв клиента
Костецкая Анастасия Петровна
Отзывчивый персонал, креативные дизайнеры, профессиональный подход к выполнению работы

На сайте студии Интерьер-Идея представлены исключительно работы наших дизайнеров.
Интерьер-Идея - дизайн интерьера в г. Львов, Львовская область .